
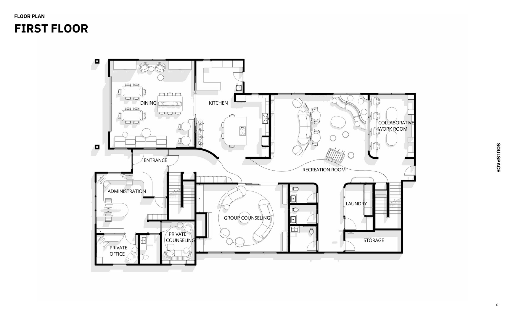
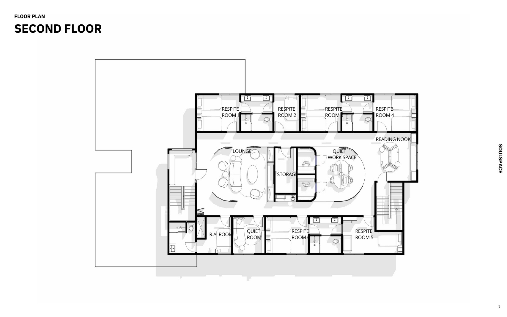
This project will serve as a safe space for the youth of Detroit who are at risk of homelessness, are homeless, or are fleeing dangerous situations. It should provide resources to increase mental health, lessen substance use, and create a community to support those in need.
Trend Research
CMF Strategy





























